2020-09-17
東莞市德藝隆電子有限公司是一家專業設計、生產、銷售為一體的精密廠商,是一家大型生產各種微動開關的20年老品牌廠家。微動開關已經在我們的生活中廣泛應用,今天小編為大家介紹的是微動開關的制造工藝。
微動開關電子元器件中,為了增強金屬端子的強度與剛度,常使用嵌件成形工藝,微動開關的基座就是一個典型的例子。小型微動開關外形尺寸通常在10mm左右,有的甚至在5mm左右,其簧片厚度在0.1mm左右,注射之前懸臂較長,易變形。因此,使用塑膠為基體,在成形前,將簧片預裝入模腔中,使熔融的材料與簧片結合固化,形成金屬塑料一體化制件,通過塑料基座的支撐,簧片的強度得到大大的提升。
微動開關由于其外形尺寸小,生產工藝相對復雜,為提高制件質量及生產效率,一般采用自動化生產。因此合理地設計生產流程,創新地進行模具結構設計,對保證制件質量,降低生產成本有著重要的意義。
微動開關的制造工藝1、微動開關制造工藝分析
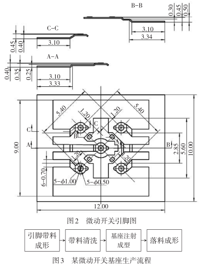
圖1所示為微動開關的基座,其中1為引腳,材料為C5191R 1/2H厚度為t=0.1mm;2為基座,材料為LCP6310
G30。要求:基座為滿足自動化生產要求,設計為帶料形式。在手工裝配工序時,基座帶料注射后依據工藝要求剪切為散件并將端子焊錫部分打彎、剪切及打彎工裝要求在同一工位完成加工過程時注意保護鍍層,基座也不得有明顯劃傷,毛刺不大于0.03mm。

圖2所示微動開關基座為一典型嵌件,制件尺寸小,引腳結構復雜,公差要求較高,多處尺寸公差要求為±0.03mm。為提高生產效率與制件質量,使用帶料模式進行生產。生產流程如圖3所示。

其中在引腳帶料環節采用一副多工位級進模進行引腳外形分切、苞點成形、引腳壓彎成形,最終完成引腳帶料的成形過程。帶料清洗環節使用超聲波,清洗掉帶料成形環節產生的油污以及金屬廢屑,之后使用1模8腔的注射模進行基座注射成型,沖壓與注射連機生產。注射完成后通過電纜紙進行分層隔離,使用料盤收集。最后,在裝配線上,由操作工人使用2t沖床實現落料成形,其中基座的剪切與打彎在同一工步上完成。
微動開關的制造工藝2、模具排樣設計

引腳帶料成形模具排樣設計如圖 4
所示,料寬12mm,步距10mm,單邊間隙0.005mm,材料利用率為52.2%。其中,第①與第②工步為向上打凸苞,引腳帶料的9個凸苞在此兩工步內完成;第③工步為空步,為保證抬料平穩,在此設置抬料塊;第④與第⑤工步中間沖帶料導正孔,導正孔大小為
? 1.5mm和 ?
1.2mm;第⑥工步為帶料分切1;第⑦工步為帶料分切2;第⑧工步為空步,設置抬料塊;第⑨工步為帶料分切3與分切4;第⑩工步為空步,設置抬料塊;第11工步為帶料分切5;第12、13工步為空步,設置抬料塊,同時提高凹模鑲件強度以及凹模板厚度;第14工步為帶料分切6,至此帶料外形已沖制完成;第15工步為空步,設置抬料塊;第16工步為A-A彎曲成形(如圖2);第17工步為B-B彎曲成形;第18工步為空步,設置抬料塊;第19工步為C-C彎曲成形,至此已經完成引出腳帶料的沖制;第20步為空步,為保證帶料抬料平穩,在此步設置抬料塊。為提高生產效率,基座注射采用1模8腔,通過送料器自動收放帶料。

基座落料成形模具排樣如圖5所示,第①、②、③工步為帶料導正,在此區間,設置抬料塊;第④工步為基座落料,第⑤、⑥工步為帶料導正,設置抬料塊;第⑦工步為通過廢料切除來進行送料定位;第⑧、⑨、⑩為空位,設置抬料塊,剩下的廢料通過收卷機進行收集。
微動開關的制造工藝3、模具結構及工作過程
流程設計是否成功主要建立在各環節是否可行基礎之上,本流程最大的難點在于基座落料模具在同一工步上剪切與打彎實現的可能性。
通過對模具閉合過程以及金屬材料變形過程的分析,提出方案,模具結構如圖6所示。

帶料通過送料器或者人手工拉料至適當的位置;模具開始閉合,導正釘接觸帶料進行精定位;切斷凸模接觸帶料引腳,并切開引腳;頂出凸模將基座制件頂入凹模板內;件4與件7定位塊將基座制件護住,防止制件翻滾;至此完成單個基座制件的分離工序。隨著上述工序的進行,被分離的基座制件有序地排列在凹模內部,并通過頂出凸模的作用,通過有特定形狀的凹模通道,完成了打彎工序。成形后的基座制件由自身重力作用,通過下墊板,下模座,掉入專門的制件收集容器中。過程如圖7所示。

圖7中件1為卸料板,件2為頂出凸模,件3為切斷凸模,件4為側導板,件5為凹模鑲件,件6為凹模板,件7為下墊板,件8為正處于切斷過程的基座制件,件9為正完成切斷過程尚未打彎的基座制件,件10為開始進行打彎的基座制件,件11為打彎過程中的基座制件,件12完成切斷打彎的基座制件。
該模具凹模板與卸料板采用SKD11材料,硬度58±2HRC。為提高模具沖次,凸凹模采用硬質合金材料,硬度88~89HRA,成形凸凹模采用光曲磨加工而成,同時模具還安裝了模高檢測機構與誤送料檢測機構。
實踐證明,該生產流程確實可行,生產節拍達到200次/min以上,模具結構可行,微動開關質量達到設計要求,生產穩定。該流程與結構的設計對減少微動開關材料浪費,保證微動開關質量具有重要的意義,為相關制件的設計提供了參考。
微動開關廠家推薦我們德藝隆電子,首先德藝隆電子創立于1999年,專業生產:輕觸開關,撥動開關,按鍵開關,貼片輕觸開關,貼片撥動開關,耐高溫輕觸開關,耐高溫撥動開關等產品,主要應用于家用電器、3C(計算機、通訊、消費電子)、辦公設備、醫療、安防、個人護理、汽車電子、工業控制等領域已經被廣大客戶認可和一致好評,選微動開關廠家就選德藝隆電子。
地址:東莞市塘廈鎮蓮湖第一工業區31號
傳真:+86-0769-27200836
手機:139-2585-8458
網站:www.c0amy.cn
E-mail:sales@twdealon.com